
Фильтр жидкостной 3.10.00 по Серии 5.903-21 предназначен для узлов обвязки регулирующих клапанов на трубопроводах тепло- и холодоснабжения, воздухонагревателей и поверхностных воздухоохладителей. Фильтры используются для очистки теплоносителя от механических примесей, песка, окалины и продуктов коррозии. Применение фильтра ОРК 3.10.00 улучшает условия расхода, увеличивает срок службы клапана, повышает надежность и долговечность системы. Фильтры ОРК присоединяются к трубопроводам Ду 65, 80, 100, 125 и 150 при помощи фланцевого соединения.
Фильтр жидкостной 3.10.00 представляет собой узел расширения трубопровода. Благодаря изменению направления движения жидкости, при попадании воды в корпус фильтра, происходит срыв потока и тяжелые фракций загрязнений оседают внутри фильтрующего элемента. В фильтре предусмотрен ниппель для удаления накопившегося шлака в дренажную систему. При установке фильтра необходимо обеспечить герметичность фланцевых соединений. В случае течи требуется подтянуть крепежи или заменить уплотнительную прокладку.
Фильтр жидкостной 3.10.00 изготавливается из ст20. Фильтрующий элемент изготовлен из стали 12Х18Н10Т. Фильтр рассчитан на температуру рабочей среды до 150 °C и давление до 1,6 МПа (16 кгс/см2). Тип соединения – фланцевое.
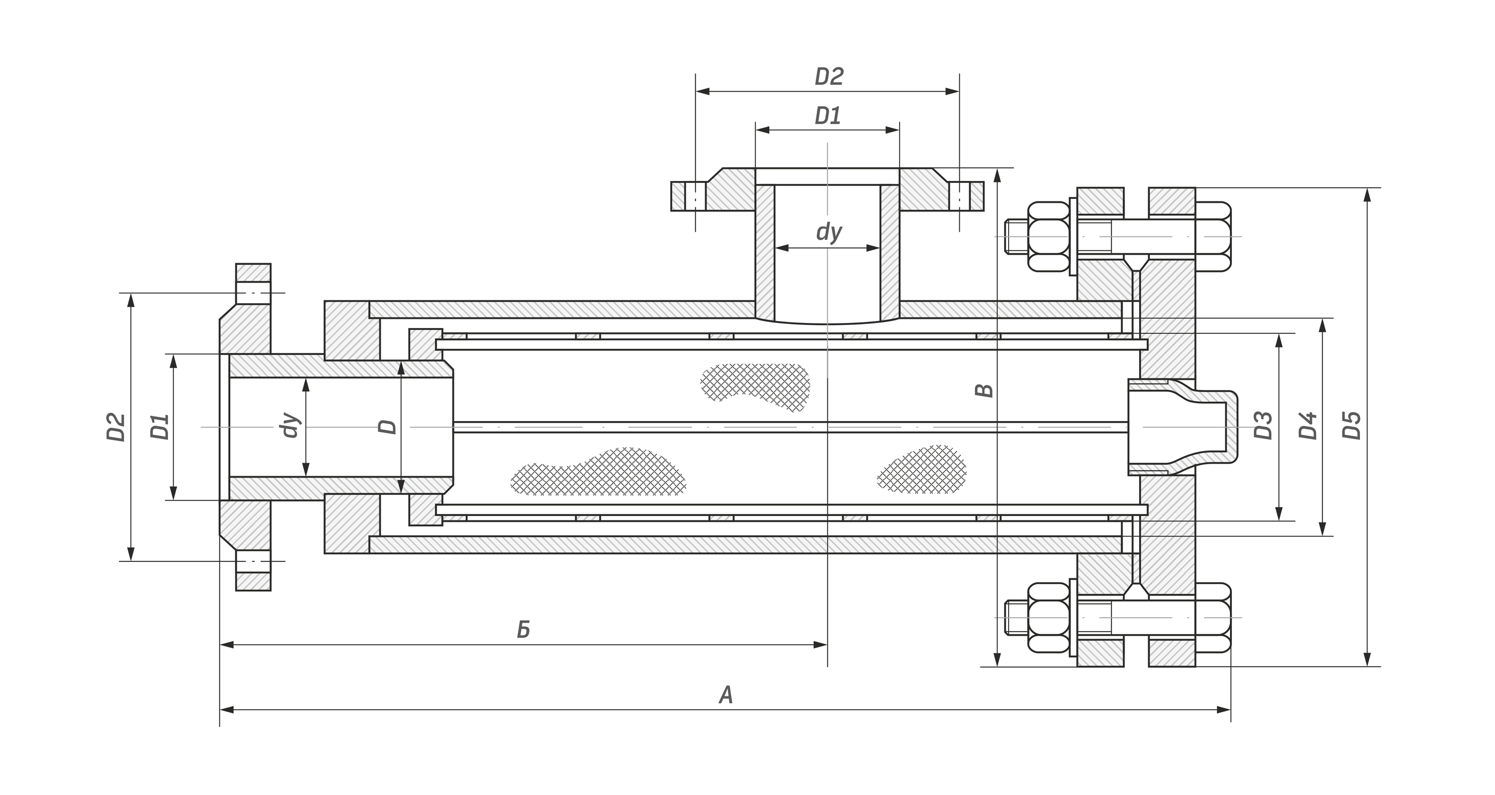
Фильтр жидкостной ОРК 3.10.00

|
Обозначение |
А |
Б |
В |
Dy |
D |
D1 |
D2 |
D3 |
D4 |
D5 |
Масса, кг |
|
ОРК 3.10.00-00 |
405 |
245 |
320 |
65 |
73 |
76 |
145 |
135 |
149 |
280 |
32,7 |
|
ОРК 3.10.00-01 |
425 |
262 |
330 |
80 |
86 |
89 |
160 |
140 |
149 |
280 |
36,2 |
|
ОРК 3.10.00-02 |
505 |
335 |
390 |
100 |
105 |
108 |
180 |
185 |
207 |
335 |
53,2 |
|
ОРК 3.10.00-03 |
546 |
355 |
430 |
125 |
130 |
133 |
210 |
220 |
257 |
390 |
74 |
|
ОРК 3.10.00-04 |
586 |
375 |
450 |
150 |
148 |
159 |
240 |
235 |
257 |
390 |
79 |

Мы находимся в 10 минутах от КАД в пос. Металлострой. Наш склад работает с 9:00 до 16:00, с понедельника по пятницу. Получение товара из наличия (сальники набивные) возможно в течение часа.
Наши партнеры по доставке - ГрузовичкоФ и ТаксовичкоФ. Возможность ускоренной отгрузки небольших партий легковым автомобилем. Доставку осуществляем с 9:00 до 18:00 по будням

Ежедневно ТК ПЭК осуществляет забор продукции с нашего склада. Отправка в любой город, или населенный пункт России. Получение товара как на терминале, так и с доставкой до адреса. Возможна отгрузка другими ТК по запросу.

ТПО «Аверс» - лидер на рынке нестандартного оборудования для нефтегазового сектора. Штат профессионалов – залог успешной работы в течение 10 лет на рынке оборудования.

Наше предприятие располагает собственным автопарком. Специалисты отдела логистики в кратчайшие сроки произведут отгрузку продукции клиентам как из Санкт-Петербурга, так и из других городов.

Сопровождение заказа с момента поступления заявки до отгрузки продукции. Наши специалисты проконсультируют Вас при выборе оборудования и ответят на Ваши вопросы.